Ningbo Hongjia CNC Technology Co., Ltd. Rumah / Produk / Serial mesin belokan biasa, penggilingan dan pengeboran / X6132 UNIVERSAL Lifting Table Milling Machine

X6132 UNIVERSAL Lifting Table Milling Machine

Pendahuluan dan Penggunaan Produk
Alat mesin ini adalah semacam alat mesin pemotong logam yang kuat, alat mesin memiliki kekakuan yang kuat, rentang kecepatan umpan yang lebar, dan dapat mengandung chip beban yang berat. Lubang kerucut spindle dapat dipasang secara langsung atau melalui aksesori berbagai pemotong penggilingan silinder, pemotong penggilingan melingkar, membentuk pemotong, pemotong penggilingan wajah, dan alat -alat lain, cocok untuk memproses berbagai bagian pesawat, kemiringan, alur, lubang, dll., Adalah peralatan pemrosesan yang ideal untuk pembuatan mesin, instrumen, instrumen, cetakan, mobil, autouto.

+ Hubungi kami
  • X6132 UNIVERSAL Lifting Table Milling Machine

Informasi produksi

Fitur struktural utama
1, pangkalan, badan pesawat, meja kerja, slide, slide pengangkatan, dan komponen utama lainnya dilemparkan dari bahan berkekuatan tinggi, dan perawatan penuaan buatan, untuk memastikan stabilitas jangka panjang dari alat mesin.
2, bantalan poros utama dari alat mesin adalah bantalan roller yang meruncing, poros utama mengadopsi tiga struktur pendukung, kekakuan sistem poros utama adalah baik, kapasitas bantalannya kuat, dan poros utama mengadopsi pengereman konsumsi energi, torsi pengeremannya besar, dan berhenti cepat dan dapat diandalkan.
3, Sudut rotasi horizontal tabel ± 45 °, memperluas kisaran pemrosesan alat mesin. Bagian transmisi utama dan bagian umpan dari tabel kerja mengadopsi struktur transmisi gigi, rentang regulasi kecepatan lebar, dan perubahan kecepatannya nyaman dan cepat.
4, Tabel X/Y/Arah memiliki umpan manual, umpan seluler, dan Mobile Fast Forward Tiga, kecepatan umpan dapat memenuhi persyaratan pemrosesan yang berbeda; Umpan cepat dapat membuat benda kerja mencapai posisi pemrosesan dengan cepat, pemrosesannya nyaman dan cepat, dan waktu yang tidak diproses dipersingkat.
5, x, y, z pasangan pemandu tiga arah dengan quenching ultra-audio, perawatan presisi dan pengikis, dengan pelumasan paksa, meningkatkan akurasi, memperpanjang masa pakai mesin.
6. Perangkat pelumasan dapat memaksa sekrup longitudinal, horizontal, L, dan vertikal dan panduan panduan untuk melumasi, mengurangi keausan alat mesin dan memastikan operasi yang efisien dari alat mesin; Pada saat yang sama, sistem pendingin mengubah ukuran aliran pendingin dengan menyesuaikan nozzle untuk memenuhi kebutuhan pemrosesan yang berbeda.
7, desain alat mesin sesuai dengan prinsip ergonomis, mudah dioperasikan; Panel Operasi dirancang dengan simbol figuratif, yang sederhana dan intuitif.

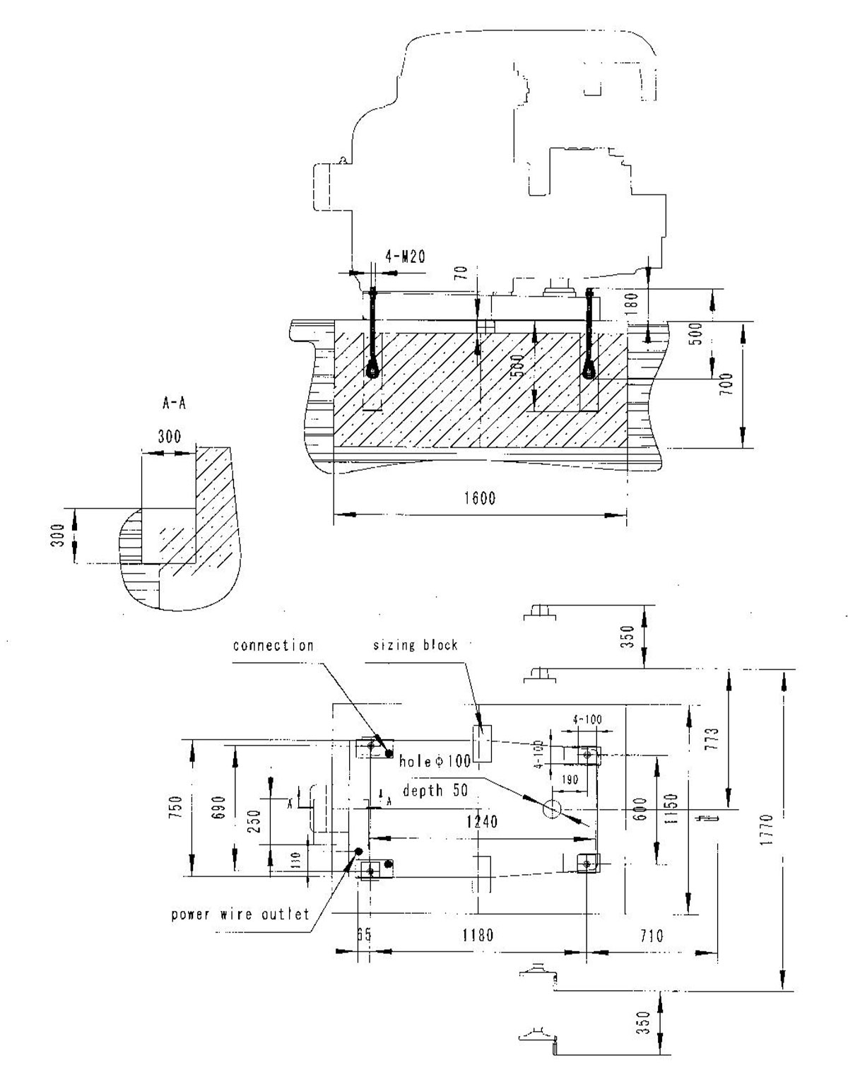
Parameter teknis utama alat mesin

Lancip lubang poros utama 7atus24 ISO50
Jarak dari jalur pusat spindle ke rel vertikal panduan rel 30-350 mm
Jarak dari garis pusat spindle ke balok suspensi 155 mm
Bukaan spindel 29mm
Sudut tabel rotasi maksimum ± 45 °
Spindle Speed ​​Range/Series 30 ~ 1500 rpm /18 level
Ukuran meja 1320x320 mm
Tabel stroke longitudinal/transversal/vertikal 700 (680/255 (240)/320 (300) mm
Rentang umpan meja longitudinal/transversal/vertikal Level 18 23.5-1180/23.5-1180/8-394 mm/mnt
Tabel kecepatan yang bergerak cepat vertikal/horizontal/vertikal 2300/2300/770 mm/mnt
Angka, lebar, dan jarak slot meja kerja berbentuk T 3/18/70 mm
Daya Motor Utama 7.5kw
Memberi makan daya motor 1.5kw
Dimensi mesin (l x w x h) 2294x1770x1665 mm
Berat mesin bersih 2700/3000 kg

Tetap berhubungan

+ SUBMIT
Ningbo Hongjia CNC Technology Co., Ltd.
Ningbo Hongjia CNC Technology Co., Ltd.
Ningbo Hongjia CNC Technology Co., Ltd. dimulai pada tahun 2006 dan didirikan pada tahun 2018. Terletak di Distrik Baru Qianwan, Kota Ningbo, Provinsi Zhejiang, sayap selatan Zona Ekonomi Delta Sungai Yangtze. Ini adalah perusahaan yang berspesialisasi dalam penelitian, pengembangan, produksi dan penjualan peralatan pemotongan logam CNC. Sebagai Cina X6132 UNIVERSAL Lifting Table Milling Machine supplier and custom X6132 UNIVERSAL Lifting Table Milling Machine company, Dengan kekuatan teknis yang kuat dan pengalaman industri yang kaya, Hongjia CNC berkomitmen untuk memberikan pelanggan solusi CNC canggih untuk memenuhi kebutuhan pelanggan di berbagai industri.
Pabrik dan Peralatan
  • Penampilan pabrik
  • Penampilan pabrik
  • Peralatan
  • Peralatan
  • Peralatan
  • Peralatan
  • Peralatan
Berita apa
Pengetahuan Industri

X6132 UNIVERSAL Lifting Table Milling Machine , sebagai produk Hongjia CNC, telah memenangkan reputasi tinggi di banyak industri karena kemampuan pemotongan logam yang kuat dan penerapan yang luas. Alat mesin ini tidak hanya cukup kaku untuk menahan operasi pemotongan beban berat, tetapi juga dilengkapi dengan berbagai kecepatan umpan untuk memastikan stabilitas dan efisiensi proses pemrosesan. Desain lubang lancip spindelnya fleksibel, dan berbagai pemotong penggilingan silinder, pemotong penggilingan melingkar, membentuk pemotong penggilingan, pemotong penggilingan wajah, dll. Dapat dipasang secara langsung atau melalui aksesori, menyediakan kemungkinan yang tidak terbatas untuk pemrosesan berbagai bagian yang kompleks, motor, motor, pembuatan, alur, hole, dll. Ini adalah peralatan pemrosesan yang kompleks untuk mesin yang bermotor, motor, alat pemrosesan machering untuk mesin yang bermotor, machering, ini merupakan peralatan proses ideal untuk mesin yang diproses dengan mesin, machy untuk mesin yang diproses dengan mesin, machering, ini merupakan peralatan proses ideal untuk mesin dengan mesin, alur, alur, alur. Industri.

Keahlian yang indah, memberikan kualitas yang sangat baik
Hongjia CNC tahu bahwa kualitas tinggi berasal dari pengejaran detail. Komponen utama dari mesin penggilingan meja pengangkat universal X6132, seperti pangkalan, tubuh, meja kerja, slide, slide pengangkatan, dll., Semua dilemparkan dengan bahan berkekuatan tinggi dan usia buatan, yang secara efektif menghilangkan tekanan internal material dan memastikan stabilitas jangka panjang dan retensi presisi dari alat mesin. Spindle mengadopsi bantalan rol yang meruncing, dikombinasikan dengan struktur tiga dukungan, yang tidak hanya memiliki kekakuan sistem yang baik dan kapasitas penahan beban yang kuat, tetapi juga dilengkapi dengan perangkat rem yang memakan energi, dengan torsi pengereman yang besar dan shutdown yang cepat dan andal, memberikan jaminan yang solid untuk pemrosesan presisi tinggi.

Fleksibel dan dapat berubah, memperluas batas pemrosesan
Untuk memenuhi kebutuhan pemrosesan yang beragam, sudut rotasi horizontal dari muatan dari mesin penggilingan meja pengangkat universal X6132 dapat mencapai ± 45 °. Desain ini sangat memperluas jangkauan pemrosesan alat mesin. Pada saat yang sama, bagian transmisi utama dan bagian umpan dari tempat kerja mengadopsi struktur transmisi gigi, dengan rentang regulasi kecepatan yang luas dan perubahan kecepatan yang nyaman dan cepat, membuat proses pemrosesan lebih fleksibel dan efisien. Dalam hal mode makan, arah X/Y/Z dari alat mesin memiliki tiga mode: pakan manual, pemberian makan bermotor dan pemberian makan cepat bermotor. Kecepatan makan dapat disesuaikan secara fleksibel sesuai dengan kebutuhan pemrosesan yang berbeda. Fungsi pemberian makan yang cepat memungkinkan benda kerja untuk dengan cepat mencapai posisi pemrosesan, sangat memperpendek waktu yang tidak mempromosikan dan meningkatkan efisiensi pemrosesan secara keseluruhan.

Presisi Presisi, masa pakai layanan yang diperpanjang
Dalam hal pemrosesan detail, rel pemandu X, Y, dan Z dari mesin penggilingan meja pengangkat universal X6132 telah dipadamkan secara ultrasonik, tanah presisi, dan dikikis, dan sistem pelumasan paksa tidak hanya secara signifikan meningkatkan akurasi pemrosesan, tetapi juga secara efektif memperluas kehidupan layanan dari alat mesin. Perangkat pelumas dapat memaksa pelumasan sekrup timbal dan memandu rel di arah longitudinal, transversal, dan vertikal, secara efektif mengurangi keausan alat mesin dan memastikan operasi alat mesin yang efisien dan stabil. Selain itu, sistem pendingin secara fleksibel menyesuaikan aliran pendingin dengan menyesuaikan nozzle untuk memenuhi kebutuhan pendinginan di bawah kondisi pemrosesan yang berbeda, lebih lanjut meningkatkan kualitas dan efisiensi pemrosesan.

Desain yang dimanusiakan, proses operasi yang disederhanakan
Hongjia CNC sepenuhnya mempertimbangkan kenyamanan interaksi manusia-mesin ketika merancang mesin penggilingan meja pengangkat universal X6132. Desain keseluruhan alat mesin sesuai dengan prinsip -prinsip ergonomi, mudah dioperasikan, dan mudah digunakan. Panel kontrol mengadopsi desain simbol grafis, yang intuitif dan mudah dimengerti. Bahkan operator pertama kali dapat dengan cepat menguasainya, yang sangat mengurangi kesulitan operasi dan meningkatkan efisiensi kerja.

Jangan ragu untuk menghubungi saat Anda membutuhkan kami!